1. Accueil
  2. Achat
  3. Achat Appartement
  4. Achat Appartement Vendee (85)
  5. Achat Appartement CHATEAU D OLONNE (85180)

Appartement T2 à vendre 2 pièces - 39,15 m2 CHATEAU D OLONNE - 85

Ref : 1486

214 000 €

  • Honoraires charge vendeur
Appartement T2 à vendre - 2 pièces - 39,15 m2 - Chateau D Olonne - 85 - PAYS-DE-LOIRE
Appartement T2 à vendre - 2 pièces - 39,15 m2 - Chateau D Olonne - 85 - PAYS-DE-LOIRE
Appartement T2 à vendre - 2 pièces - 39,15 m2 - Chateau D Olonne - 85 - PAYS-DE-LOIRE
Envoyer un message
Message
Envoyer ce bien à un ami

Description

BOURG DU CHATEAU D'OLONNE - Appartement T2 neuf - Livraison 3ème trimestre 2028.

Votre agence Century 21 Bleu Marine vous présente à la vente ce T2 en rez-de-chaussée de 39m² dans une résidence neuve qui verra le jour au troisième trimestre 2028.

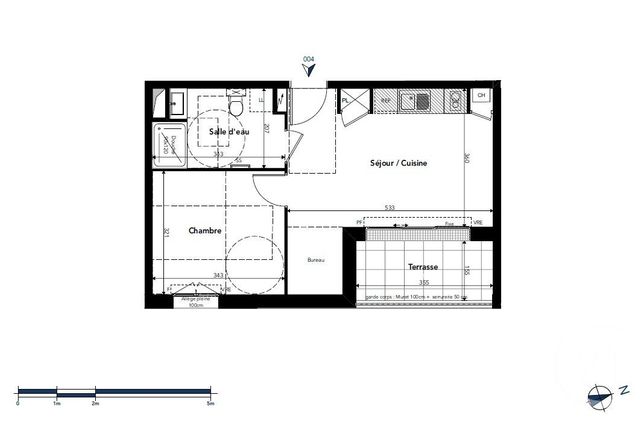
Ce T2 se compose d'un salon avec cuisine aménagée équipée, d'une chambre de 11m², d'une salle d'eau avec WC et d'une terrasse de 5m².

La vente comprend également un stationnement en extérieur.

Pour plus d'informations contactez notre agence Century 21 Bleu Marine aux Sables d'Olonne au 02.52.20.34.03 ou venez à notre rencontre au 5 cours Louis Guedon, 85100 Les Sables d'Olonne.

Localisation

Laissez-nous vos coordonnées pour obtenir la localisation

Envoyer

Afficher sur la carte :

Localiser le bien

Vue globale

  • Surface totale : 44,7 m2
  • Surface habitable : 39,2 m2
  • Type d'appartement : T2
  • Étage : Rez-de-chaussée
  • Nombre de pièces : 2
    • Séjour (21,7 m2)
    • Chambre (11,0 m2)
    • Salle d'eau (6,5 m2)
    • Terrasse (5,5 m2)
  • Type de construction : Traditionnelle
  • Année construction : 2028

Équipements

Les plus

P

Parking exterieur

Terrasse

Rue

Général

  • Parking exterieur : 1 place(s)
  • Chauffage : Individuel radiateur gaz
  • Eau chaude : Chaudière gaz
  • Toiture : Tuile
  • Ascenseur
  • Videophone

À savoir

Copropriété

  • Nombre de Lots : 21
  • Charges courantes par an : 1,0 €
  • Pas de procédure en cours

Les performances énergétiques

Non soumis au DPE

Ce bien est proposé par l'agence CENTURY 21 Bleu Marine

CENTURY 21 Bleu Marine

CENTURY 21 Bleu Marine

5 Cours Louis Guedon

85100 LES SABLES D OLONNE

02 52 20 34 03
qualitelis Votre agence est notée
Achat Vente
9,3/10

Nos offres

Notre agence immobilière à Les sables d olonne Cours Louis Guedon vous propose :

Calculer vos mensualités
de remboursement

Montant du prêt :
Durée du crédit
Taux d'intérêt (hors assurances)

vos mensualités

- € par mois

(Dont -€ d’assurances)

Crédit immobilier simulation
et premiers calculs

vous êtes acquéreur et vendeur,

Vous êtes acquéreur et vendeur, nos agents immobiliers peuvent vous accompagner dans vos projets

Contacter l'agence

Envoyer à un ami

Envoyer

Créer votre alerte

Rappel de vos critères de recherche :

Erreur dans les critères envoyés

Limite d'alertes atteinte

Cette alerte existe déjà

Cette alerte est déjà enregistrée pour cette adresse email. Vous continuerez à recevoir les biens correspondant à vos critères.

Une erreur est survenue

Merci de réessayer ultérieurement.

Votre alerte a été créée

Vous recevrez les biens correspondant à vos critères.

logo vente privées

48h

d’avance sur
le marché

Prenez un temps d’avance sur le marché en profitant gratuitement des Ventes Privées CENTURY 21

Si ce n’est déjà fait, allez compléter le profil de votre compte afin de pouvoir recevoir en avant-première des biens exclusifs, réservés à nos clients pendant les 48 premières heures suivant leur commercialisation.

Nos agences proposent régulièrement des biens comme celui que vous cherchez

Ne ratez pas une opportunité, on vous alerte en priorité !

Êtes-vous actuellement propriétaire de votre bien ?
Créer une alerte
Je souhaite être alerté
Voir les biens correspondants

Envoyer un message :

Envoyer